Protiproud SPECK - BADU JET TURBO LIGHT
Kód: VG3012325300Detailní popis produktu
Protiproud BADU JET TURBLO LIGHT je určen pro montáž do stěn všech modelů bazénů (kromě kulatých) - do tloušťky stěny 7 mm.
Ideální pro výkonově orientované cvičení, relaxaci, rehabilitační trénink, fitness nebo volnočasovou zábavu s celou rodinou.
DESIGN
Vrtule je skryta za hlavním krytem, který je zapuštěn do stěny bazénu. Vodu nasává předním panelem a silným proudem ji vrací zpět do bazénu.
Protiproud se zapíná a vypíná pomocí vestavěných piezo tlačítek nebo dálkového ovladače, stejně tak se reguluje i výkon.
| Průtok: | 90 - 200 m3/h |
|---|---|
| Typ produktu: | Vestavný protiproud |
| Max. průtok: | 200 m3/h |
| Napětí: | 230 V |
| Příkon: | 1,1 kW |
| Pro slanou vodu do 5 g/l (<0,5%): | Ano |
POUŽITÉ MATERIÁLY
Hlavní uložení .................................................................. ABS
Uložení trysek .................................................................. ABS
Kryty ................................................................................. ABS
Mezipříruba ...............................................................PP GF 30
Jednotka pohonu.........................................................PP GF 30
Mechanická těsnění ............................karbon/keramika/NBR
Šrouby................................................................nerezová ocel
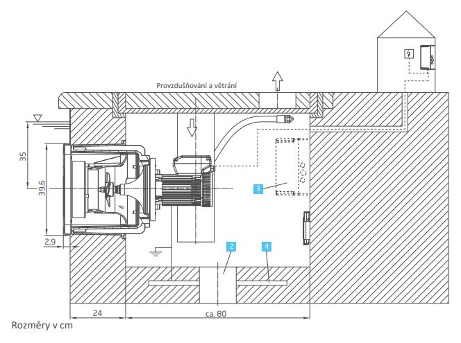
ROZMĚRY

INSTALACE

ROZSAH DODÁVKY
- Plastová hlavní skříň,
- sací kryt,
- ABS kryt,
- jednotka vrtule,
- jednotka trysky,
- piezo tlačítka,
- těsnění,
- šrouby.
Hodnocení produktu
Buďte první, kdo napíše příspěvek k této položce.
Diskuze
Buďte první, kdo napíše příspěvek k této položce.
Pouze registrovaní uživatelé mohou vkládat příspěvky. Prosím přihlaste se nebo se registrujte.




